Suure-Jaani linn korraldas projekteerimishanke Suure-Jaani kooli ja gümnaasiumi rekonstrueerimiseks ja laiendamiseks. Hanke juurde tuli esitada visioonikavand, kus lisaks kogu kooli rekonstrueerimisele nii seest kui ka väljast, oli vaja lahendada algklassidele uue laienduse rajamine, uue raamatukogu lahendus ning spordihoone ja kooli tervikuna toimimine koos uute funktsioonide ja ruumidega.

Põhilised märksõnad uue visioonikavandi lahenduste osas on hoovialade aktiveerimine, hoone sissepääsude ja liikumisteede loogika parandamine ning lisatavate elementide ja ehitusmahu sobitamine olemasolevasse struktuuri.
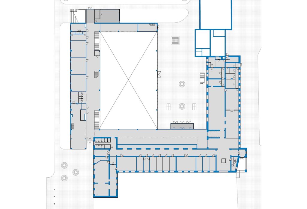
Vambola ja Tallinna tänavate nurgal olev peasissepääsu esine väljak jääb paika, kuid sinna on lisatud lipuvardad, rohkem istumisvõimalusi, konteinerhaljastust ja väikevorme. Kaotada tuleks ka parkimiskohad vähemalt Tallinna tn poolses servas bussipeatuse ees. Väljak võiks olla üleni jalakäijate kasutuses ning parkivad autod ei tohiks sulgeda liikumist ja vaateid kooli peaväljaku ees. Vana koolimaja suurele, ilma akendeta tühjale otsaseinale on lisatud graafiline maaling koolilapsest, kes selles majas sirgub pisikesest kooljütsist arukaks ja enesekindlaks gümnasistiks. Maaling elavdab peaväljakut, annab kaugelt aimu hoone sisust ja otstarbest ning muudab tuima ning tumma otsaseina visuaalselt köitvaks linnaruumi elemendiks.

Hoone mahuline arhitektuurne lahendus lisab olemasoleva spordisaali kõrval asuva ühekorruselise algklasside tiiva peale teise korruse ning laiendab algklassidele ettenähtud mahtu Lembitu pst suunas ühe klassiruumi laiuse võrra. Lembitu pst poolsesse otsa lisandub ka lõunapäikese poole avatud astmestik, kus saab istuda ning õuetunde läbi viia. Astmed on kaetud puiduga. Astmestiku servas on trepp, mis lahendab 2. korrusele lisandunud juurdeehituse evakuatsiooni ning võimaldab algklasside õpilastel õuetundi või vahetundi liikuda mugavalt oma alalt, läbimata pikki koridore teiste väljapääsudeni. Astmestiku kohal on osaliselt varikatus, mis katab nii 2. korruse väljapääsu astmetele kui ka all asuva spordihoone/algklasside sissepääsu.

Juurdeehituse maht lähtub akende- ja fassaadijaotuses olemasoleva “uue osa” fassaadidest ning sobitub olemasoleva hoonega. Algklasside osa fassaadid kaetakse laineliste sügavpunast tooni metallkassettidega, sest praegune puidust ribistik on amortiseerunud, ning selle all olev betoonsein on kruviaukudest visuaalselt kahjustatud. Samuti seob uus fassaadikate juurdeehituse ja olemasoleva osa uueks värske ilmega tervikuks.

Olemasoleva spordihoone fassaad säilitatakse alumises osas olemasoleva betoonpinnana, kus puitribide eemaldamisest kruviauke alles ei jää. Ülemises mahus puitribid eemaldatakse ning ümbritsetakse fassaad päikesesirmidega samas stiilis teostatud perforeeritud siksakilise ekraaniga. See muudab hoone ühtseks tervikuks ja annab väiksemate kuludega kogu “uuele osale” uue ilme.

Hoone mahud moodustavad ruudu, mille keskele jääb sisehoov. Sisehoovipoolne sissepääs on võetud aktiivsemalt kasutusele ning hetkel üsna kasutuseta sisehoov on täiendatud väikevormide, konteinerhaljastuse ja uue suure tuulekojaga, mis tagab sissepääsu otse garderoobi.

Vana koolimaja fassaad kaetakse lisasoojustusega ning krohvitakse ja värvitakse helehalli tooni. Avatäidete vahetus ja/või vahetuse ulatus tuleb välja selgitada edasise projekteerimise käigus. Lõunapoolsetel külgedel kasutatakse akende ülemistes jaotustes paketisiseseid ribikardinaid, see ei lase otsesel päikesevalgusel ruumi liiga palavaks kütta.
Juurdeehituse punane fassaad harmoneerub olemasoleva punase plekk-katusega, kuid on toonilt intensiivsem.
Vana koolimaja Tallinna tn poolsele tummale otsaseinale on ette nähtud suur maaling, mis kujutab lapse arengut läbi kõigi koolihoones asuvate kooliastmete.

